SCHULZENTRUM THEDINGHAUSEN
Bauherr: Gemeinde Thedinghausen
Bauleitung:Architekturbüro Wilshusen
Bauzeit:1994-1996
NF: 2.694 m²
BRI: 14.412 m³ neu
Statik:Ahrlich & Partner
Hzg./San.-Planung:Ing.-Büro Burdorf
Elektroplanung:Ing.-Büro Müller
Ausgestellt beim Tag der Architektur 1996
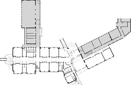
Der Neubau ist in eine vorhandene Schulanlage integriert. Die 17 neuen Klassenräume werden in zwei Ebenen über eine innere ‘Schulstraße’ erschlossen. Diese verbindet die vorhandenen Fachklassen- und Klassentrakte über einen Forumsbereich mit der alten Turnhalle, so dass der gesamte Schulkomplex trockenen Fußes erschlossen werden kann.
Die Klassenräume liegen wie Häuser an der Schulstraße. Es gibt einen “Marktplatz”, eine Bücherei, eine Galerie, eine Brücke und diverse Blickbeziehungen aus dem OG ins EG und umgekehrt.
Bauleitung:Architekturbüro Wilshusen
Bauzeit:1994-1996
NF: 2.694 m²
BRI: 14.412 m³ neu
Statik:Ahrlich & Partner
Hzg./San.-Planung:Ing.-Büro Burdorf
Elektroplanung:Ing.-Büro Müller
Ausgestellt beim Tag der Architektur 1996
Der Neubau ist in eine vorhandene Schulanlage integriert. Die 17 neuen Klassenräume werden in zwei Ebenen über eine innere ‘Schulstraße’ erschlossen. Diese verbindet die vorhandenen Fachklassen- und Klassentrakte über einen Forumsbereich mit der alten Turnhalle, so dass der gesamte Schulkomplex trockenen Fußes erschlossen werden kann.
Die Klassenräume liegen wie Häuser an der Schulstraße. Es gibt einen “Marktplatz”, eine Bücherei, eine Galerie, eine Brücke und diverse Blickbeziehungen aus dem OG ins EG und umgekehrt.






